Prensa Neumática 300Kg. Solo planos p/fabricación.
- Ubicado en Buenos Aires, Cdad. Autónoma de Buenos Aires, Argentina
$ 16.200
Localidad: Buenos Aires, Cdad. Autónoma de Buenos Aires, Argentina
Rubro: Equip. e Instalaciones, Prensas y Extrusores,
Visitas: 219
Ubicación:
Características:
- Estado: Nuevo
- Ubicación: Buenos Aires, Cdad. Autónoma de Buenos Aires, Argentina
Descripción
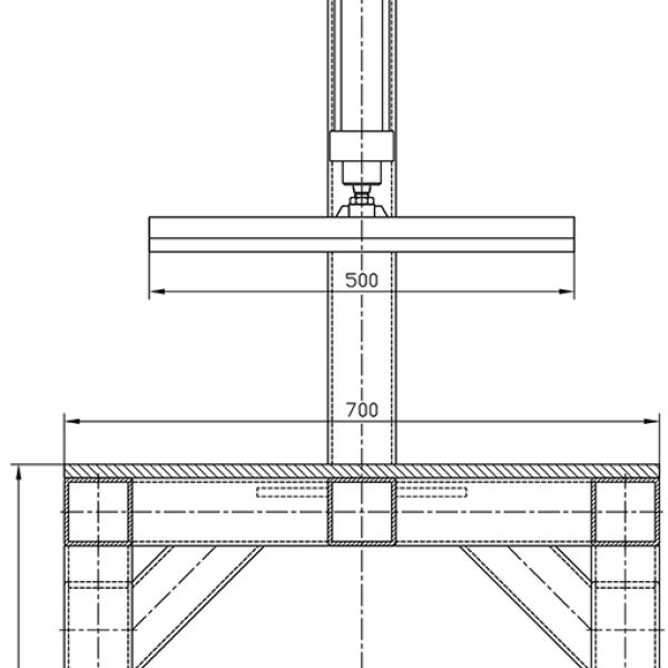
Esta prensa está diseñada para operar con una fuerza de 300 Kilogramos, generados por la acción de dos cilindros neumáticos.
Se venden solo los planos completos para fabricar la prensa.
La superficie de trabajo es de 500x500 milímetros, siendo la mesa receptora mayor, de 700x700 milímetros. El recorrido de la placa de prensado es de 250 milímetros.
Se incluye una tabla operativa con los esfuerzos dinámicos desarrollados por el pistón en daN (Kgf) en función de la presión de alimentación en bar (kg/cm2).
Material: Hierro – Peso del equipo: 250Kg.
El diseño es del conocido Ing Teodoro Kresisch, y puede comprar solo los planos completos en formato pdf, visitando la página de Editorial Libroptica, en Libros Técnicos. La forma de pago es a través de MercadoPago (ars) y/o Paypal (usd, eur, mxn, brl).
-
No tiene tienda
-
Valoración
-
Operando en agrositio 6 años




0 Preguntas